Let

Mayfield Road Moseley

£900pcm

Overview

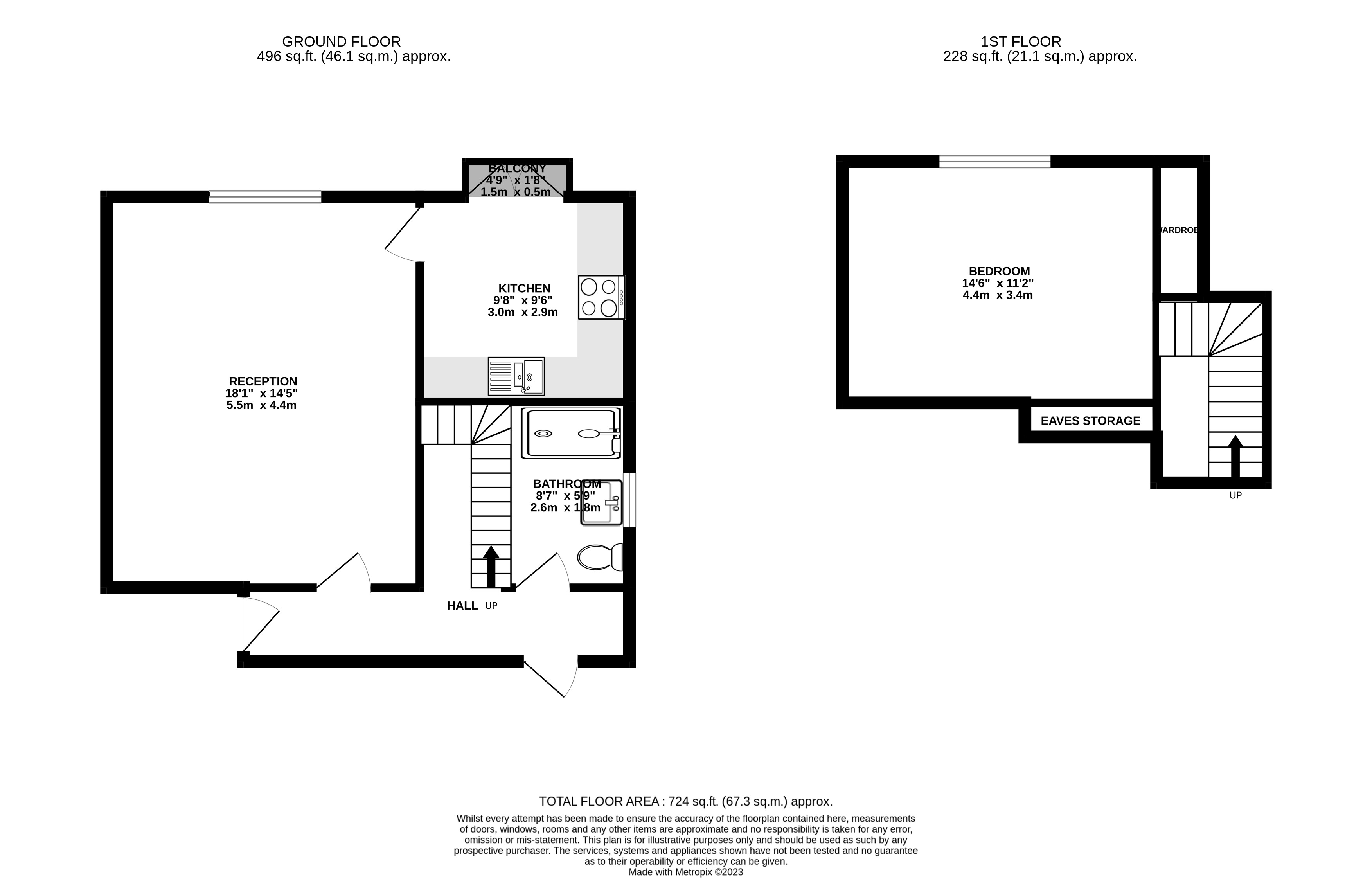
1 Bedroom Flat for rent in Mayfield Road Moseley
1 1 1

Key Features:

  • Available 29th January 2024
  • Unfurnished
  • Large Duplex Apartment
  • Newly Fitted Kitchen
  • Newly Fitted Bathroom
  • Fitted Wardrobes
  • Balcony
  • EPC Rating E
  • Council Tax Band A


A characteristic duplex apartment available from 29th January 2024 on an unfurnished basis. This generously proportioned apartment has a recently refitted kitchen and bathroom as well as south-westerly views over a private garden. Read more

Important Information

  • The review period for the ground rent on this property is every 1 year
  • This Council Tax band for this property is: A

epc

Berkley Street Birmingham

1 Bedroom Flat

Berkley Street Birmingham

Sherborne Street Birmingham

1 Bedroom Flat

Sherborne Street Birmingham

Upper Marshall Street Birmingham

1 Bedroom Flat

Upper Marshall Street Birmingham

Ryland Street Birmingham

1 Bedroom Flat

Ryland Street Birmingham

Morville Street Birmingham

1 Bedroom Flat

Morville Street Birmingham

Holliday Street Birmingham

1 Bedroom Flat

Holliday Street Birmingham


Update Cookies Preferences